architron
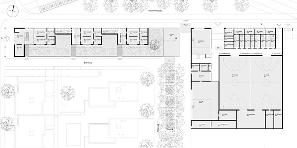
Wettbewerb Neubau Kinder- und Bildungseinrichtungen Brünnen  -  Architron Zürich - Imre Bartal, 2009
Wettbewerb Neubau Kinder- und Bildungseinrichtungen Brünnen  -  Architron Zürich - Imre Bartal, 2009


Wettbewerb Neubau
Kinder- und Bildungseinrichtungen Brünnen

Architron Zürich - Imre Bartal, Antje Schmidt 2009

Download PDF 13.7 MB

Wettbewerb Neubau Kinder- und Bildungseinrichtungen Brünnen  -  Architron Zürich - Imre Bartal, 2009