architron
Umbau und Renovation Zeltweg 29, Zürich 2009 - 2011


Umbau und Renovation Zeltweg 29, Zürich 2009 - 2011

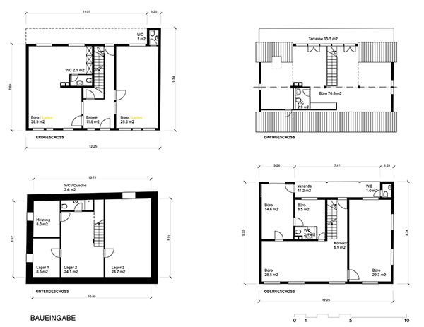
Das Ensemble steht seit 1982 unter Denkmalschutz. In mehreren Etappen und schrittweise wurden Umbau und Sanierungsmassnahmen vorgenommen. Die grosse Herausforderung der Aufgabe bestand darin die komplizierten Baurechtlichen, Denkmalpflegerischen, Feurpolizeilichen und die Asprüche der Benutzer und Eigentümer untereinander in Einklang zu bringen.


Umbau und Renovation Zeltweg 29, Zürich 2009 - 2011
Umbau und Renovation Zeltweg 29, Zürich 2009 - 2011
Umbau und Renovation Zeltweg 29, Zürich 2009 - 2011
Umbau und Renovation Zeltweg 29, Zürich 2009 - 2011
Umbau und Renovation Zeltweg 29, Zürich 2009 - 2011